Property Details
Located in one of the most sort after locations in Umina Beach is this DA approved site on a generous 682.9 Sqm block, it is within easy access to Umina Beach public school, sporting ovals, park lands, shops and the golden sands of Umina Beach.
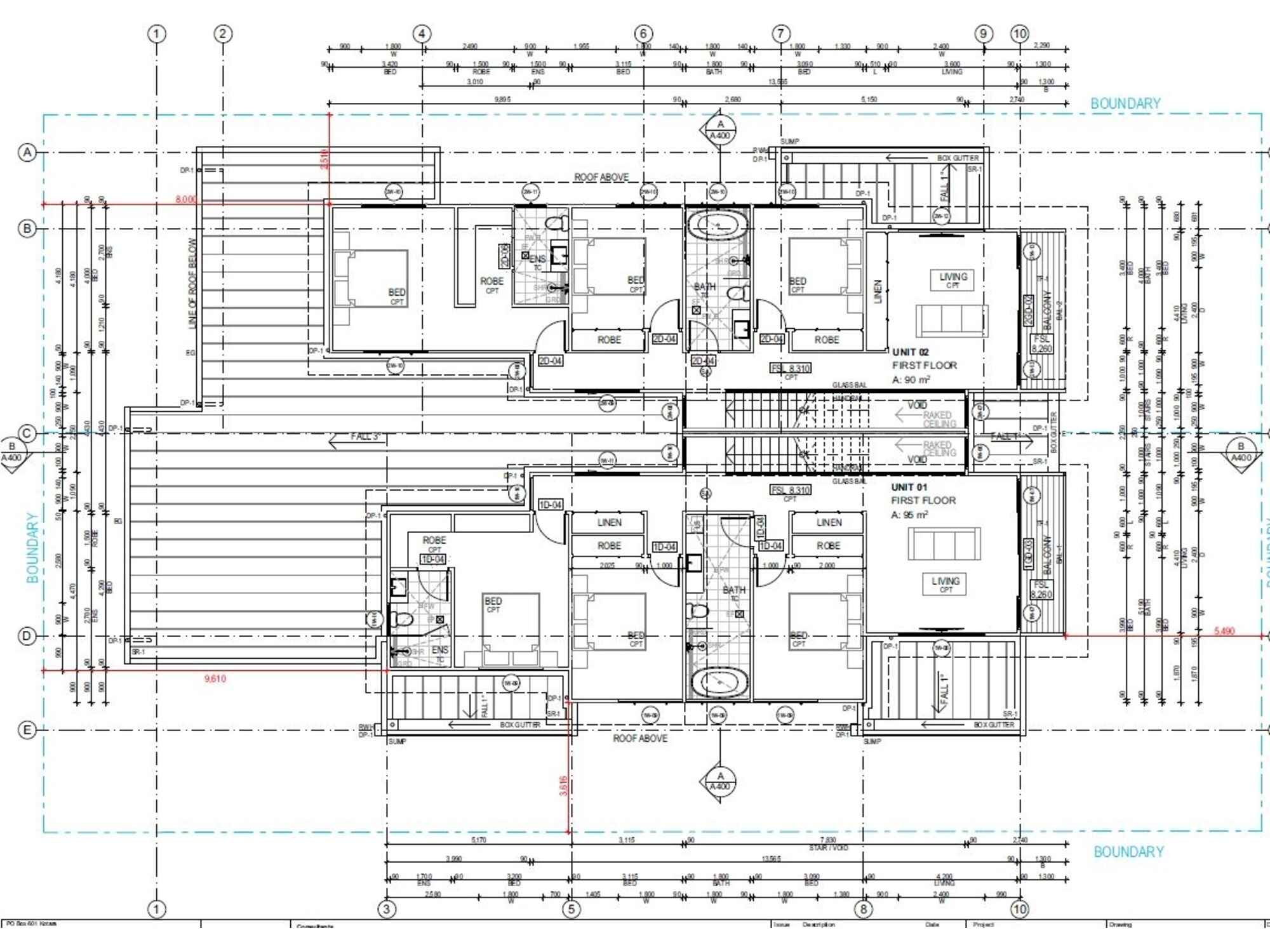
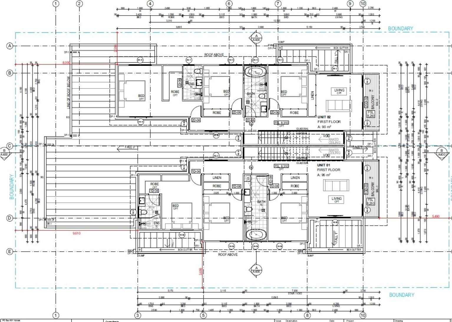
The block has been approved for the construction of two duplex style high end 4-bedroom townhouses with the main bedrooms downstairs, two separate living areas and each with a double garage with their own street access.
Other features include -
- Three-bedroom house with original kitchen and bathroom
- One bedroom studio with original kitchen and bathroom
- Corner block with side access
- Generous 682.9 sqm block with side access
- Great location that is walking distance to Umina Beach and Umina Beach Shopping precinct
- Time has been saved with approved plans available on request
DA Approved sites are rare so, call Damien McPherson on 0468 866 852 to arrange your inspection today.
Disclaimer: Richardson & Wrench Umina Beach have obtained all information herein from sources we believe to be reliable; however, we cannot guarantee its accuracy. Prospective purchasers are advised to carry out their own investigations.












